Vai al contenuto

ATTUAZIONE MISURE PNRR

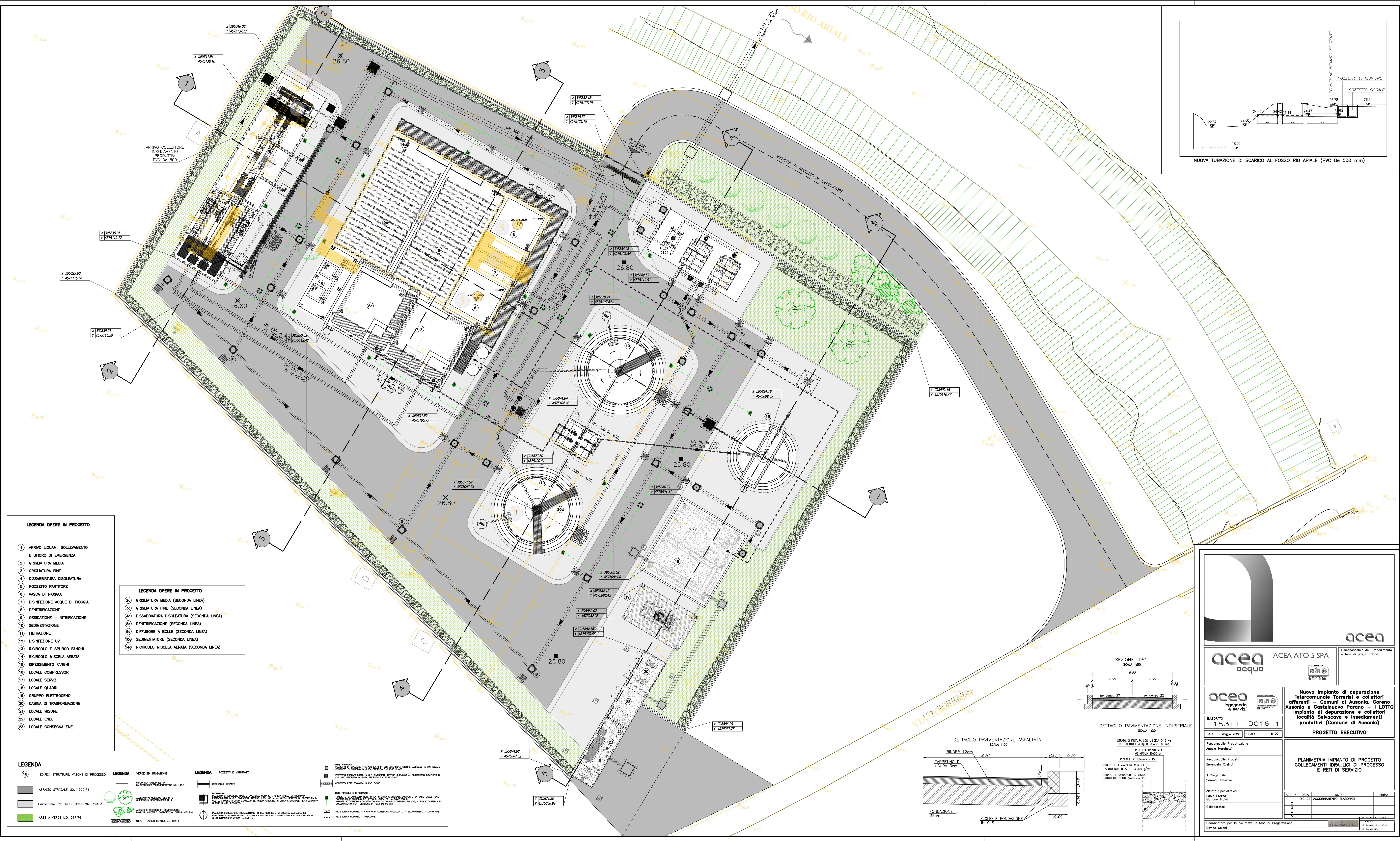
Il Progetto​
IMPIANTO INTERCOMUNALE TORRERISI E COLLETTORI AFFERENTI
PROGETTO PNRRM2C4-I4.4-1_F153PE D016 1 - IMPIANTO DI PROGETTO - PLANIMETRIA-1-261
Download5 MB

ATTUAZIONE MISURE PNRR

  • Intervento integrato per l’efficientamento delle reti di distribuzione di alcuni Comuni dell’Ambito Territoriale Ottimale n. 5 Lazio Meridionale – Frosinone
  • IMPIANTO INTERCOMUNALE TORRERISI E COLLETTORI AFFERENTI
  • COLLETTORI AFFERENTI IMPIANTO INTERCOMUNALE TORRERISI – LOTTO 2
  • Intervento integrato per l’efficientamento delle reti di distribuzione di alcuni Comuni dell’Ambito Territoriale Ottimale n. 5 Lazio Meridionale – Frosinone
  • IMPIANTO INTERCOMUNALE TORRERISI E COLLETTORI AFFERENTI
  • COLLETTORI AFFERENTI IMPIANTO INTERCOMUNALE TORRERISI – LOTTO 2